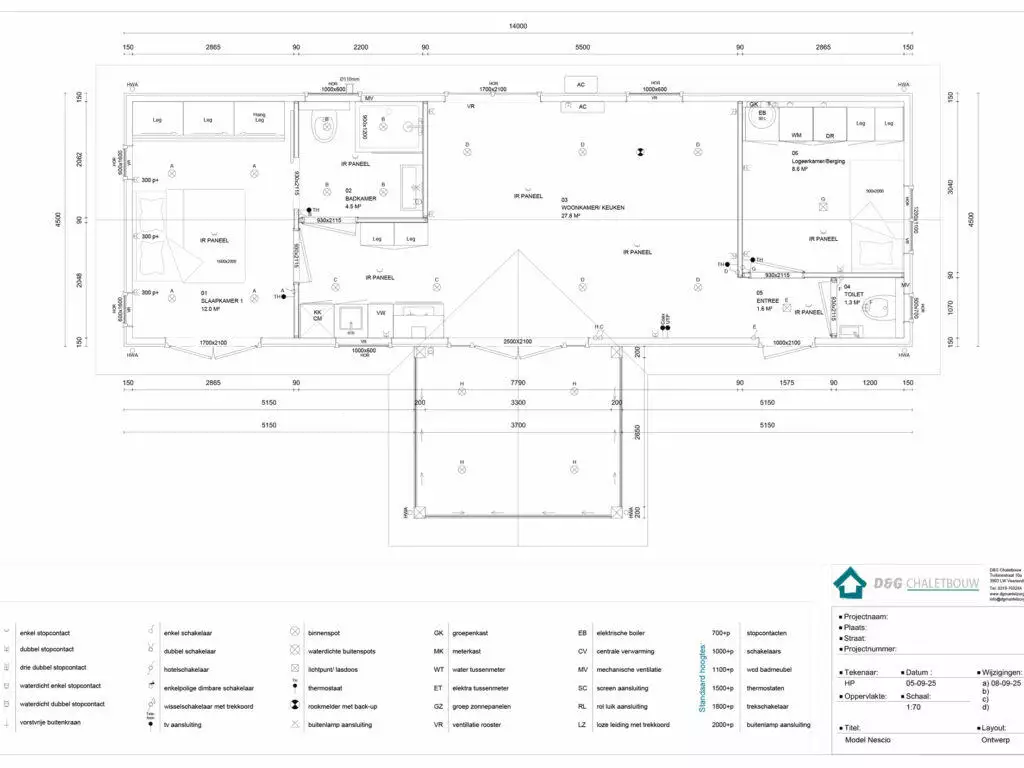
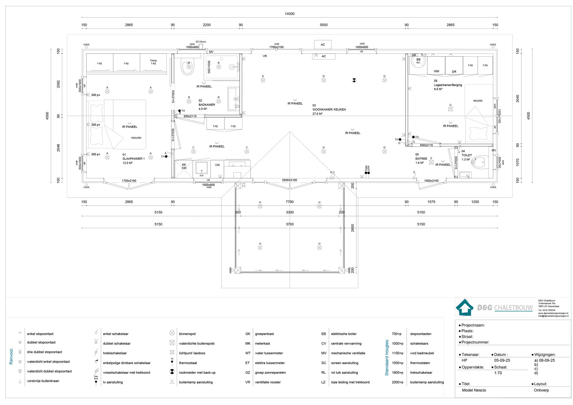
Nescio voorraad model

Model: Nescio voorraad model 6
Afmetingen (lxb): 14.00 x 4.50 meter + serre van 3.70 x 2.65 meter
Oppervlakte: 63 m² + serre van ca. 10 m²
Prijs: op aanvraag incl. BTW, transport en plaatsen en excl. kraanwerkzaamheden

Specificaties

  • Dit model is momenteel verkocht, maar snel nieuw te leveren!
  • Ruime keuze in opstellingen en afwerking.
  • Standaard voorzien van hoogwaardige isolatie.
  • Stijlvol chalet met zadeldak en veel lichtinval door de grote raampartijen en ruime serre (afm. 3.70 x 2.65 meter)
  • Luxe keuken voorzien van diverse inbouwapparatuur waaronder een volledig geïntegreerde vaatwasser.
  • Luxe badkamer voorzien van ruime inloopdouche, toilet en wastafelmeubel. De wanden zijn afgewerkt met onderhoudsvriendelijke materialen.
  • Ruime 1e slaapkamer (afm. 286,5 x 450 cm) met 3 hang- / legkasten en directe toegang tot de badkamer.
  • 2e slaapkamer / berging: afm. 286,5 x 304 cm.
  • 2e toilet.
  • Binnenwanden bekleed met glasvliesbehang, gesaust in de kleur wit (RAL9010).
  • Ventilatieroosters en matglas waar aangegeven.
  • Onderhoudsarm exterieur.
  • Verwarming d.m.v. infraroodpanelen.
*Met uitzondering op plaatsing met telekraan en op de Waddeneilanden.

    Onze voorraadmodellen

      Download onze GRATIS brochure
      Download onze GRATIS brochure

      Download onze gratis brochure!

      "*" geeft vereiste velden aan

      Dit veld is bedoeld voor validatiedoeleinden en moet niet worden gewijzigd.

      Overlay Image

      Download onze gratis brochure!

      "*" geeft vereiste velden aan

      Dit veld is bedoeld voor validatiedoeleinden en moet niet worden gewijzigd.